LAKE residence
Lake Residence — єдиний в Івано-Франківську, ексклюзивний проект якому немає аналогів. Це 9 унікальних таунхаусів преміум-класу, розташованих на першій береговій лінії міського озера. А ще, це кардинально новий підхід до концепції сучасного міського житла!
Комплекс має закриту територію, який складається з 9 елітних таунхаусів площею 126 та 143 м2, з власною прибудинковою територією, терасою площею 47 та 54 м2, паркомісцями, патіо та басейном на задньому подвір’ї.
«Lake Residence» — це місце, де поєднано сміливі архітектурні рішення, сучасний дизайн, матеріали преміум-класу, та виняткове розташування. Транспортна інфраструктура дозволяє без перешкод добратися до центру міста.
В безпосередній близькості до комплексу розташовані:
- супермаркети, торгові центри, ресторани;
- школи, заклади дошкільної освіти;
- центральний міський парк ім. Тараса Шевченка;
- скейт-парк, критий басейн, тенісний корт, бігова доріжка, зелена зона.
Загальна площа:
Площа таунхауса:
Початок будівництва:
Кількість будинків:
Площа тераси:
Кінець будівництва :
LAKE RESIDENCE
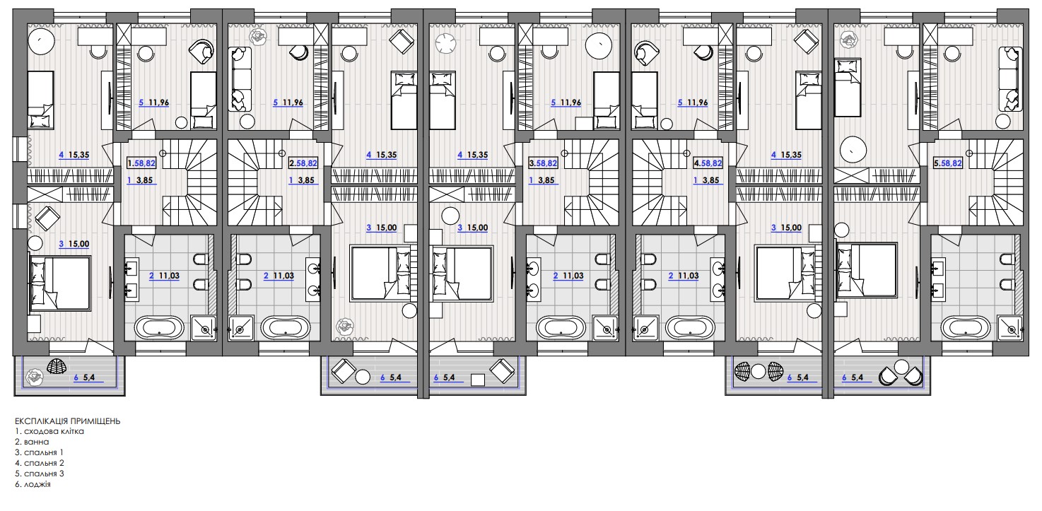
ПЛАНУВАННЯ
Комплекс, територією 0.2 га., складається з двох частин:
- Platinum Residence - 4 таунхауси з ділянкою по 2.5 соток, з прямим видом на міське озеро, та острів Кохання.
- Gold Residence - 5 таунхаусів з ділянкою по 1.5 соток, з виглядом на паркову зону, та боковим видом на озеро.
Platinum Residence
Кількість таунхаусів — 4
Загальна площа — 143 м.кв.
Площа тераси — 54 м.кв.
Площа ділянки — 2.5 соток.
Gold Residence
Кількість таунхаусів — 5
Загальна площа — 126 м.кв.
Площа тераси — 47 м.кв.
Площа ділянки — 1.5 соток.
Gold Residence
Кількість таунхаусів — 5
Загальна площа — 126 м.кв.
Площа тераси — 47 м.кв.
Площа ділянки — 1.5 соток.
Матеріал стін — монолітний каркас
Розташування












